Projets
Contact
Infos
Projets
Contact
Infos
Maison Blanche
architecture intérieure
juillet 2025
___
Client Privé
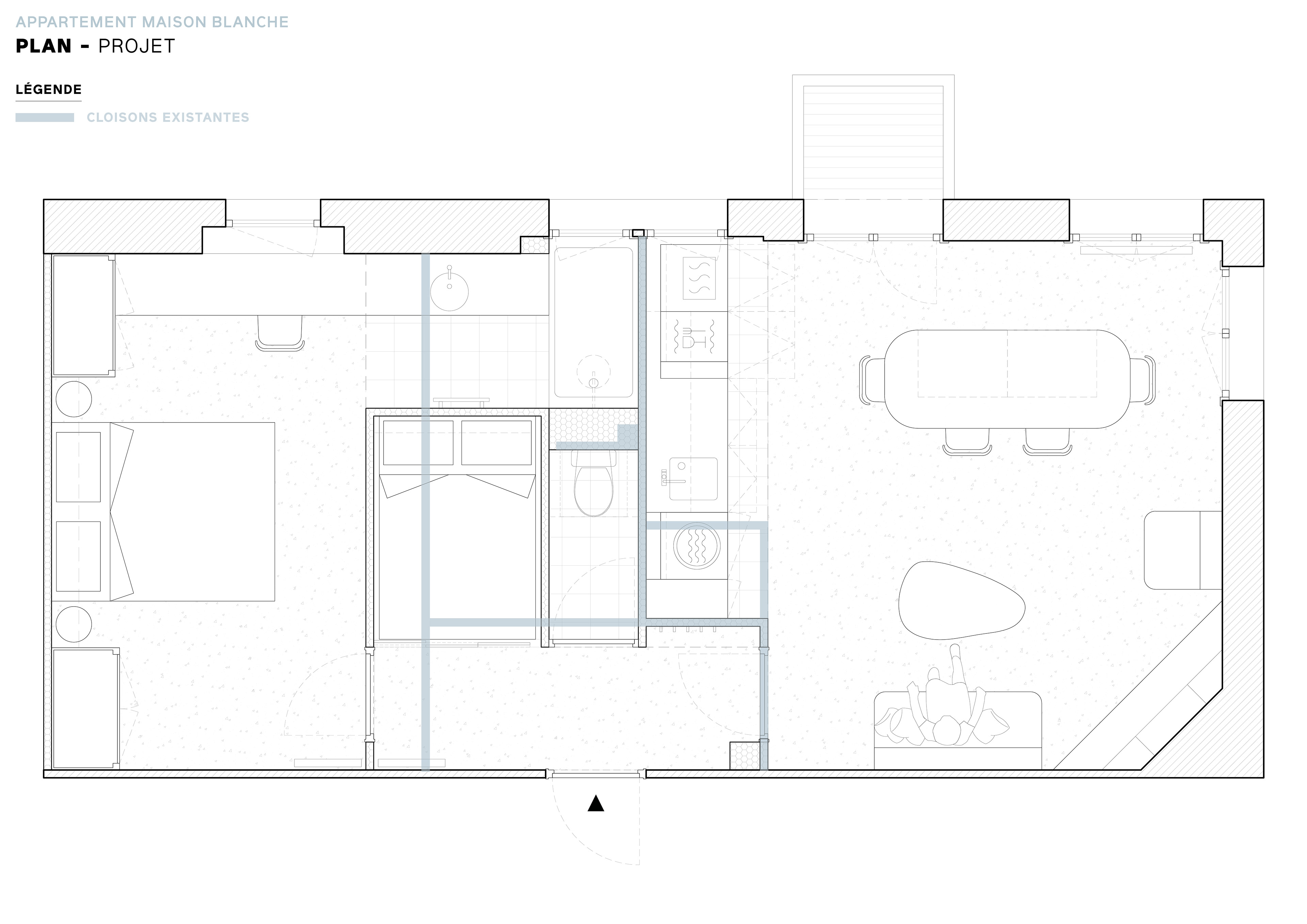
Maison Blanche, Varengeville-sur-Mer, Normandie
Transformation d'un appartement.
Réalisation des plans et visuels 3D.
↑
Back to Top