Projets
Contact
Infos
Projets
Contact
Infos
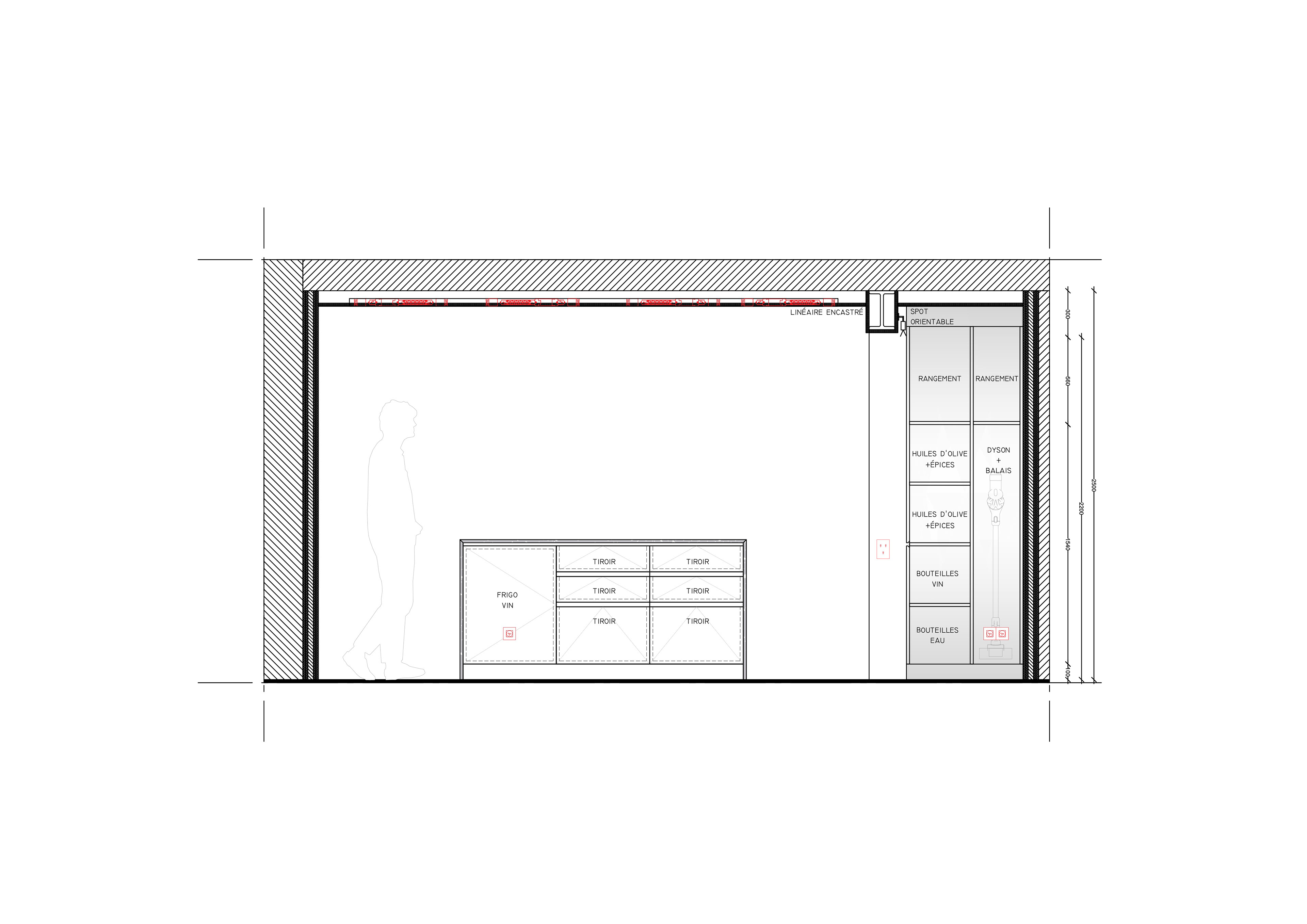
Cuisine - Varengeville
architecture intérieure
juillet 2022
___
Client Privé
Route de Dieppe, 76119 Varengeville-sur-Mer, Normandie
Réalisation des plans et visuels 3D pour une cuisine sur-mesure.
↑
Back to Top