Projets
Contact
Infos
Projets
Contact
Infos
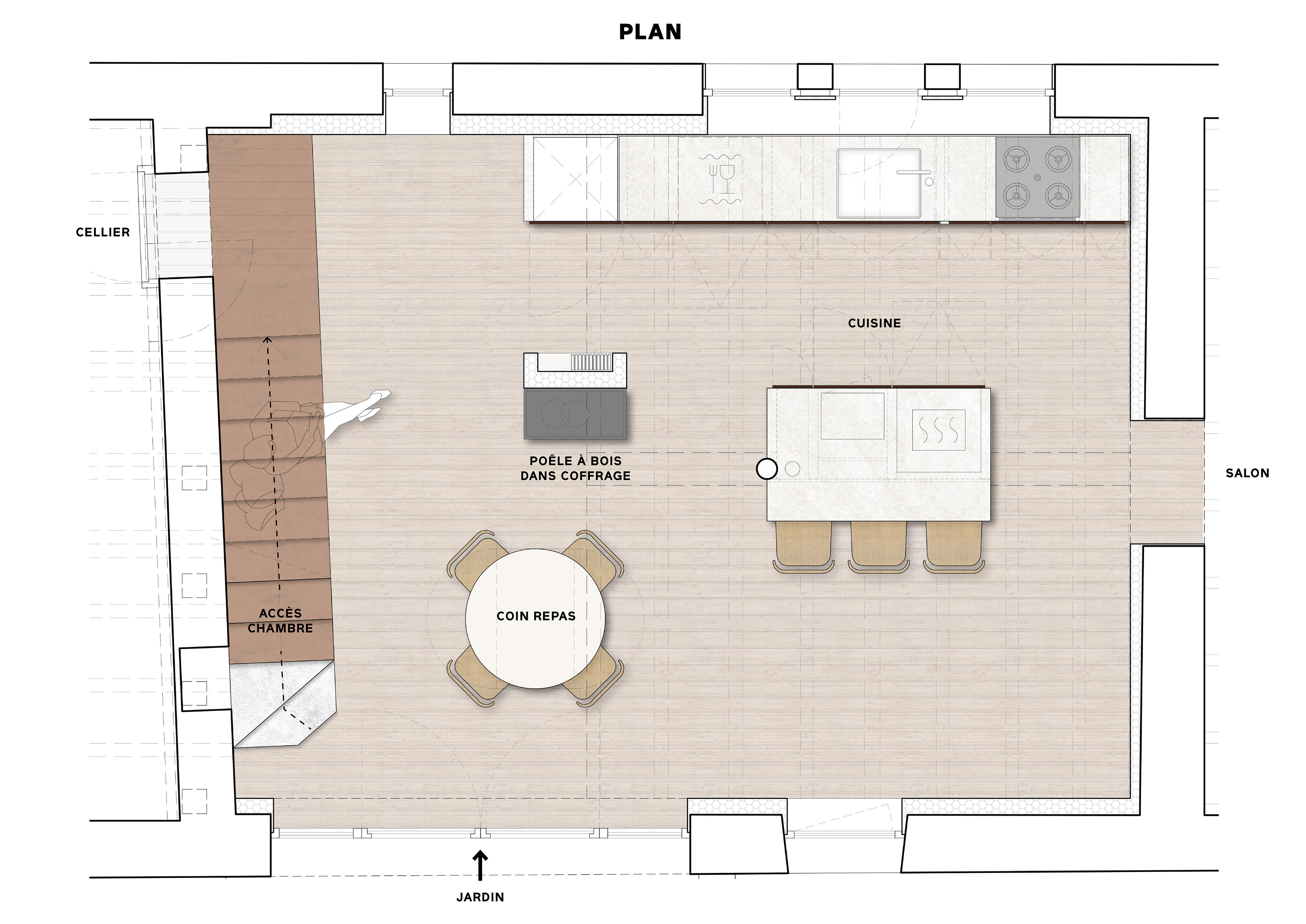
Cuisine - Lafeline
concept
juillet 2024
___
Client Privé
Route de Vieillefond, 03500 Lafeline, Auvergne
Conception de plans et visuels 3D pour la création d'une cuisine.
↑
Back to Top