___
Client Privé 
Château de Briailles, Saint-Pourçain-sur-Sioule, Auvergne
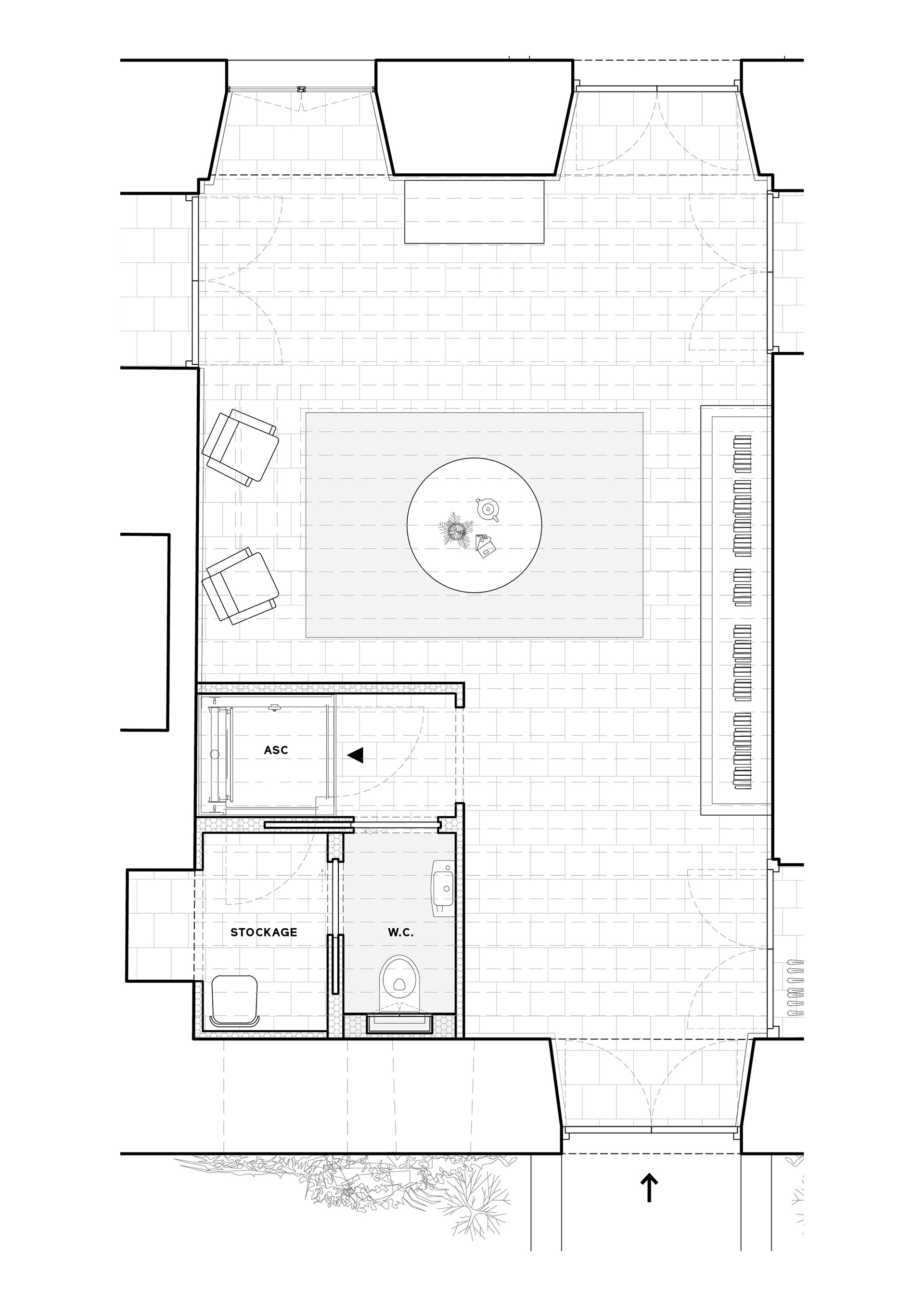
Transformation d'une entrée avec création d'un sas accueillant un ascenseur, un toilette et un espace de stockage. 
Les miroirs permettent de prolonger les poutres peintes de l'entrée. Création de luminaires sur-mesure.
Plan général projet
Photos avant travaux
Back to Top